Privacy Policy
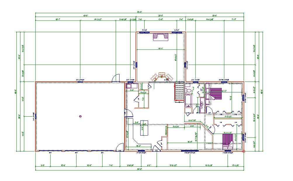
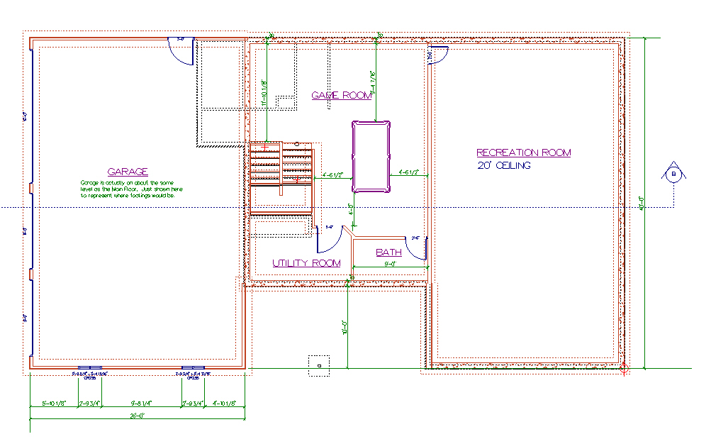
Foundation Plan
Front Plan
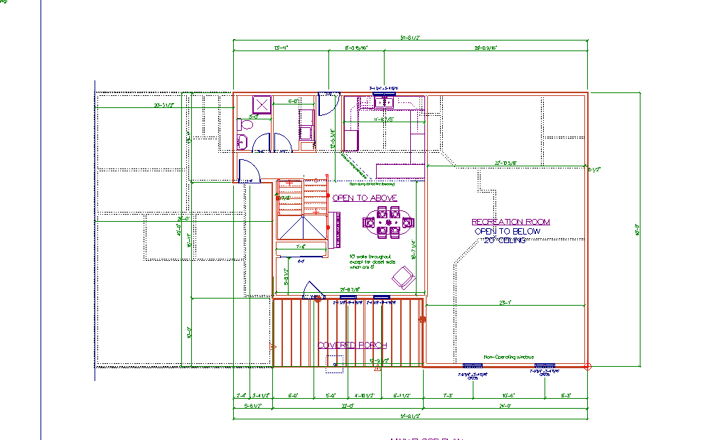
Main Floor Plan
Front View Simulation
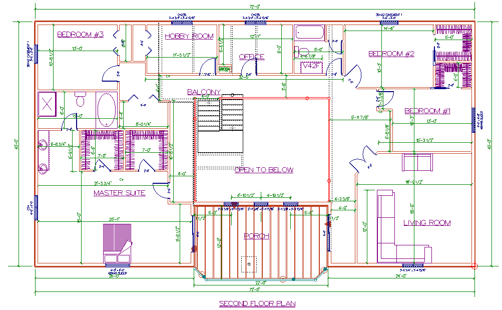
Upper Floor Plan
Cross Section View
Floor Plan
Simulated Back View
Actual Back View
Kitchen Plan